Doppelhaus mit je zwei Wohnungen in Erfurt Kerspleben. KfW-Förderung 300.000 €.

 

 

Die Lage des Grundstücks ist dem Parzellenplan zu entnehmen.

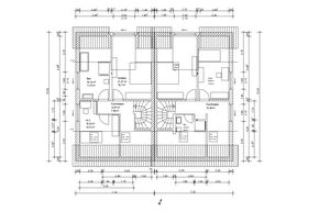
Grundriss EG                                                                      Grundriss OG                                                            Grundriss DG        

 

©   2025 Bau Consult Dr. Werner Held | Blumenstraße 70 | 99092 Erfurt. Alle Rechte vornehalten.